Sketch
Sketch
Sketch
ZOOM Constructora
Práctica Profesional
Zoom es una compañía cuya misión es: desarrollar y comercializar espacios auténticos, seguros y tranquilos de alta valorización para sus clientes. Con valores de integridad, honestidad, innovación y sentido de pertenencia. Actualmente cuentan con dos edificios residenciales construidos: Zoom 118 y Jade Plus y están comenzando EÓN un proyecto residencial en la calle 32 con Américas. En el cual me encuentro trabajando en planimetría y diseño de apartamentos.
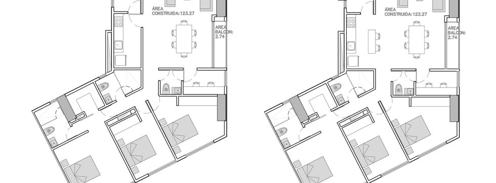
EÓN es un edificio residencial que actualmente está sobre planos y se espera salir a ventas el 27 de septiembre de este año. El proyecto está compuesto por dos torres de 23 pisos cada una, conectadas en el segundo piso por un puente donde están ubicadas las zonas húmedas del edificio, En primer piso están conectadas por medio de un paseo comercial que además conecta la avenida de las Américas con la calle 24. Los dos primeros pisos están equipados con toda la parte social y comercial del edificio, contando con zonas húmedas, teatrino, cava de vinos y locales comerciales de hasta 500 metros cuadrados. La torre 1 cuenta con 5 tipologías de apartamentos entre30 - 60 metros cuadrados y la torre 2 con 10 tipologías desde 27-125 metros cuadrados ubicados al rededor y un vacío central.
Planimetría General Ed. EON




Semana a Semana
Práctica Profesional
Día tras día en Zoom he ido aprendiendo parte del oficio como arquitecto. Comenzado por los distintos conocimientos que deben tenerse frente a la norma y los precios para la escogencia del lote hasta los detalles como el picaporte de la puerta y la entrega a los nuevos residentes del edificio.
Las primeras semana nos dedicamos a redibujar la planimetría general del edificio EON, donde aprendí como se manejan los aislamientos y como la cantidad de apartamentos dependen en gran parte del número de parqueaderos que puedan construirse.
Los cortes y fachadas del edificio también fueron un ejercicio interesante para comprender la volumetría del edificio, sus vacíos e ir viendo como iba a quedar la estética del edificio.
Finalizada la planimetría general, empezamos con el diseño de los apartamentos. Los lotes en los cuales va a ser construido EON eran antes unos pequeños edificios residenciales, con ellos la negociación fue por medio de metros cuadrados en el nuevo edificio, a estas personas les denominamos los aportantes. Gran parte de los diseños de los apartamentos son para ellos, dado que el resto de apartamentos se van a manejar para la venta a partir de plantas tipo.
Diseño Apartamentos




Semana a Semana
Práctica Profesional
Actualmente se está construyendo la sala de ventas. La cual consta de una sala sala de espera, oficina de ventas, gerente comercial, sala de diseño y dos apartamentos modelo. En los cuales he visto como se hace la escogencia de los materiales y proveedores para la construcción de este. El amoblamientos de los apartamentos se denominó con el estilo de 'Loft Industrial' y busca mezclar materiales industriales, con apartamentos abiertos y mucho verde que ambiente los espacios.
Sala de Ventas



Segundo Corte
Tercer Corte
Plantas
Maqueta Sala de Ventas
Renders Ed. Eón
Arq. Luis Eduardo Amaris Novoa - 2018



































